Používáme cookies k optimalizaci našich webových stránek a našich služeb. Další informace o cookies najdete zde.

Nastavení


Platnost účtu byla ukončena, web bude trvale smazán za:

Pokud chcete platnost účtu obnovit, napište nám na podpora@chytry-web-maklere.cz
Stavební pozemek s projektem a stavebním povolením - Podkopná Lhota

Stavební pozemek s projektem a stavebním povolením - Podkopná Lhota

Popis nemovitosti

Nabízím k prodeji slunný, rovinatý pozemek o celkové ploše 1 271 m² v klidné obci Podkopná Lhota ve Zlínském kraji. Velkou výhodou této nabídky je již vydané platné stavební povolení a hotový projekt, díky čemuž můžete začít stavět prakticky okamžitě, bez zbytečného úřadování a čekání. Parcela je plně zasíťovaná – voda, plyn i kanalizace jsou přivedeny na hranici. Přístup je bezproblémový z obecní asfaltové komunikace, vjezd na pozemek již prošel schvalováním potřebných úřadů.

Celková cena nemovitosti je stanovena na 2 650 000 Kč, a je k jednání. Navíc vám zajistíme financování výhodným hypotéčním úvěrem.

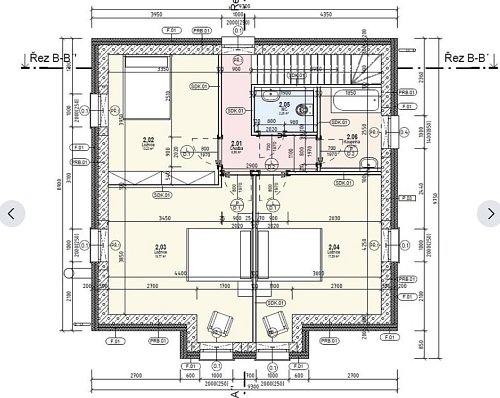
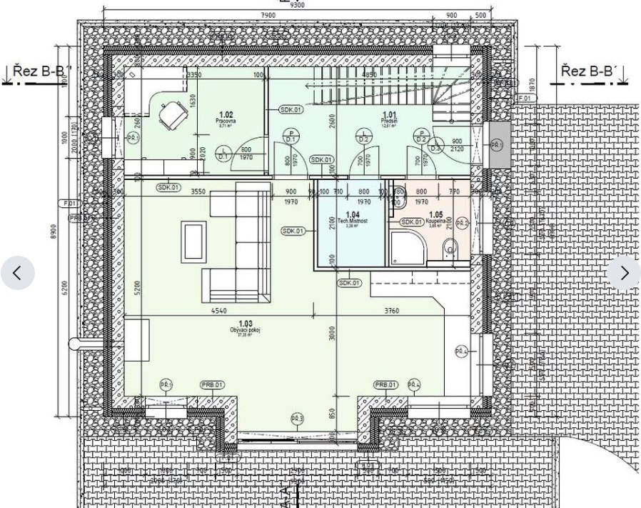
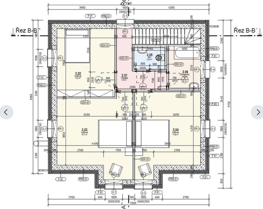
Součástí prodejní ceny je projekt na zděný dvoupodlažní rodinný dům o dispozici 5+kk s valbovou střechou. Zastavěná plocha činí 85,3 m² a podlahová plocha nabízí štědrých 131,4 m². Dům je chytře navržen s ohledem na co nejmenší rozlohu základové desky při zachování velkorysého vnitřního prostoru. Projekt lze samozřejmě upravit podle vašich představ, případně ho nemusíte vůbec využít a můžete si zde postavit jiný dům dle platných regulí obce.

Podkopná Lhota nabízí ideální kombinaci klidného vesnického života v obklopení přírody s dostatkem lesů a cyklostezek. Zároveň ale poskytuje výbornou dostupnost do Slušovic či nedalekého Zlína, kam pravidelně jezdí přímé autobusové spojení. Služby jsou k dispozici většinou v blízkých obcích Trnava a Kašava, kde najdete školy, školky, obchody, restaurace a další zázemí.

Pokud hledáte pozemek s možností rychlé výstavby rodinného domu - právě jste ho našli !

Ing.Martin Bezděčík

Dobrý den

Vítám Vás ve své profesní prezentaci. 

Nabízím Vám dlouhodobou péči o Vaše potřeby v oblasti realit a správy majetku.

V realitách jde zejména o :

  • vyhotovení ocenění nemovitosti (kvalifikovaný odhad tržní ceny nemovitosti)
  • poradenství ke všem tématům spojeným s prodejem či pronájmem nemovitosti
  • přípravu nemovitosti na prodej (pasport, úklid, homestaging)
  • vyhotovení profesionální prezentace nemovitosti (foto, video, dron, 3Dscan)
  • zajištění inzerce na všech realitních portálech (marketing na míru)
  • realizaci prohlídek, servis pro zájemce o koupi
  • prověření likvidity zájemce
  • právní servis
  • vklady na katastr nemovitostí 
  • poprodejní servis

V oblasti komplexní správy majetku Vám mohu ve spolupráci s 4fin Better Together nabídnout :

  • zajištění financování bydlení
  • zajištění rizik - sjednání životního či jiného pojištění
  • sjednání penzijního spoření (DPS, DIP)
  • výhodné investování do realit i jiných finančních produktů

Potřebujete pomoci s prodejem nemovitosti ? Potřebujete sjednat hypotéku ? Hledáte zajímavé investiční příležitosti s jistým výnosem ? Řešíte jak výhodně investovat a vyhnout se při tom rizikovým nabídkám ?

Prosím - zanechte mi zprávu, budu Vás kontaktovat.

 

 

 

 

 


Ing.Martin Bezděčík

Kontaktní formulář

Stáhnout PDF